一、项目基本情况
博爱县南水北调配套水厂及管网工程是为了提升我县人民群众用水质量及保障用水安全,适应现代化小城市建设需要实施的一项重点工程。水厂位于博爱县科技路与柏山路交叉口的东北角,占地约35亩,建设规模为4万立方米/日。净水厂工程主要包括反应沉淀池、V型滤池、清水池、送水泵房和变配电间、加氯加药间、污泥脱水机房以及含化验等功能的综合楼。管网工程敷设DN200mm-DN800mm球墨铸铁管道25.09公里,工程总投资10335.6万元。工程于2018年元月通水运行。
二、项目工艺流程和特点
该项目由河南省城乡规划设计研究总院有限公司设计,采用絮凝→沉淀→过滤→消毒→加压→配水管网的先进制水工艺。各制水环节和主要设备采取数控自动化操作管理,建设有中央监控室,对厂区制水流程进行全自动操作,实时传输进出流量、浊度、温度、余氯、压力、PH值等数据,同时监控室设置LED大屏20个画面,对厂区进行无死角视频监控。并在焦作市县级水司中,率先建设具备42项检测能力的化验室,为水质安全保驾护航。
三、项目主要设施功能介绍及工艺流程图
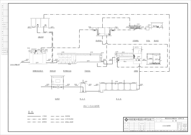
南水北调配套水厂供水规模为4万吨/日,主要包括综合楼、配水井、絮凝沉淀池、V型滤池、反冲洗间、加氯加药间、清水池、送水泵房及变配电间、脱水机房等16座建筑物和构筑物,占地35亩。下面就主要设施功能介绍如下:
1、综合楼:包括化验室、中央监控、办公区。其中,化验室可以对水质进行42项全分析,保障饮用水卫生标准;中央监控室可以对厂区制水流程进行全自动化操作。
2、配水井:配水井主要是对原水进行稳流分配,为下一步絮凝做准备。
3、絮凝沉淀池:该构筑物主要是对加过药的原水进行絮凝、反应,使水中的杂质形成矾花结絮沉淀,为下一步过滤做准备。
4、V型滤池:V型滤池主要是对絮凝沉淀池末端的水进行过滤,通过1.2m厚的海砂层,截住水中细小杂质,使过滤后的水质浊度达到饮用水标准。
5、反冲洗间:反冲洗间主要担负对V型滤池进行冲洗。当V型滤池截住的杂质达到一定量时,水位上升,滤速变慢,通过设定的程序,反冲洗泵房自动对V型滤池进行排队冲洗,直至将所截杂质冲洗干净。
6、清水池:通过V型滤池过滤后的水经消毒进入清水池,清水池主要对水厂供水起调节和储存作用,本水厂设置两座3000m3共计6000m3 的清水池。
7、加氯加药间:该单体内设置加氯系统和加药系统。其中加氯系统主要是对原水加氯杀藻和对滤后水进行消毒;加药系统主要是对原水投加絮凝剂,加速水中杂质沉淀。
8、送水泵房及变配电间:送水泵房主要担负着将清水池的水通过泵站加压送入城市管网;变配电间主要担负着全厂区的高低压配电。
9、脱水机房:将厂区生产所排泥水进行浓缩、调理后,送到脱水机房脱水,并将泥饼进行无害化处理。
10、排水池:通过对V型滤池进行反冲洗的废水进入排水池,然后用泵加压到配水井,实行废水再利用。
11、全厂区设置4个PLC场站,可以实行全自动化生产。
